реальные кейсы

Примеры расчета себестоимости продукции

Кирпич Облицовочный

Высокая рентабельность

Кирпич Облицовочный COLOR MIX и Моноцвет

Линии с системой COLOR MIX, позволяют воплотить в жизнь практически либое цветовое решения, начиная от цвета продукции, так и перехода от одного цвета к другому. 

Основные преимущества данного кирпича это:

 -Уникальный внешний вид.

- Высокая марочная прочность М200 и выше

- Высокая морозостойкость F100 и выше.

- Низкое водопоглощение 4-6%

-Скрытие дефектов при кладке, благодаря своей структуре прощает много ошибок.

- Высока маржинальность продукции (по сравнению с моноцветом).

- Идеальная геометрия.

- Не требует обжига.

- Запуск производства в серию за 6 месяцев. (3,5 месяца изготовление оборудования и подготовка площадки, 2,5 месяца на отработку всех тех процессов и обучение персонала)

- Стабильный спрос на продукцию.

  

Узнать подробнее про технологию изготовления

Узнать подробнее

Блок и полублок как основной строительный материал

Прочный, самонесущий стеновой материал

Блок и ПОлублок

Блок и полублок гипрепрессованный обладает отличными свойствами для применения его как основной стеновой материал.

Преимущество:

- Высокая марочная прочность в среднем М150.

- Высокая звукоизоляция, на уровне с керамическим полнотелым кирпичом.

- Идеальная геометрия позволяет укладывать блок под гребенку.

- За счет тонкого шва, блок не плывет при укладке, тем самым процесс укладки ускоряется.

-Возможно изготовление с разной пустотностью.

Узнать подробнее про технологию изготовления

Узнать подробнее

Тротуарная плитка любой толщины, от 40 до 90мм

Возможны разные размеры

Плитка Тротуарная

Тротуарная плитка производимая на наших линиях отличается разнообразием цветовых решений и не высокой себестоимостью. Отлично подходит для мощения пешеходной зоны и парковочных площадей.

За счет конструктивности оборудования высота плитки может устанавливаться в настройках пресса любая от 40 до 90мм, при этом матричный узел остается прежним. Как следствие переход с одного размера на другой занимает не более 10 минут.


Узнать подробнее про технологию изготовления

Узнать подробнее

О нас

Собственное производство
Работаем под ключ
Гарантия 12 месяцев
Короткий период окупаемости
15 лет опыта
Лизинг

Технология производства Изделий

ПРОЦЕСС производства

На видео показан общий процесс производства линии.

КОМПОНЕНТЫ СМЕСИ:

Инертный материал. Для производства подходят мягкие породы инертного материала такие как:

1. Известняк

2. Доломит

3. Отсев мрамора

4. Известняк ракушечник (тырса)

5. Травертин

6. Другие породы схожие по своему составу.

Основной критерий к подбору инертного материала это его прочность на дробление, идеальным значением считается от М200 до М600. Так же не маловажен базовый цвет инертного материала, от него зависит цветовая гамма конечного продукта. Для полной деталировки свяжитесь с нами любым удобным способом для получения консультации и анализа Вашего материала.

Цемент. В качестве Вяжущего вещества в производстве используются как правило Серый и белый цемент марки от М400 до М600, Для получения необходимого цвета и корректного раскрытия пигмента как правило используются разный цемент (серый и белый).

Пигмент. Для производства цветных изделий мы используем железооксидный пигмент. Данный тип пигмента не подвержен активному выгоранию и сохраняет базовый цвет долгое время.

Вода. Для запуска процесса гидратации цемента используется Вода.

Пример стандартной смеси для изготовления желтого кирпича:

1. Инертный материал 93%

2. Цемент 7%

3. Пигмент до 4% от массы цемента.

4. Вода до 36% от массы цемента.

Только Природные материалы

Известняковые породы (инернтый материал
Природный материал, добываемый на карьере
Цемент
Производится из полезных ископаемых.
Пигмент
Представляет собой окись железа

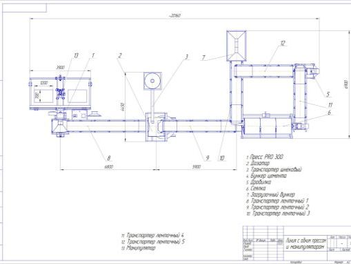
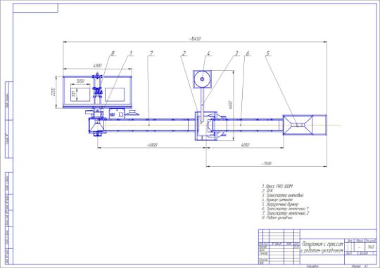
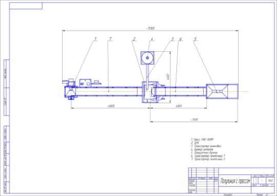
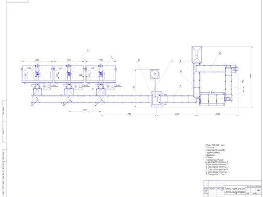
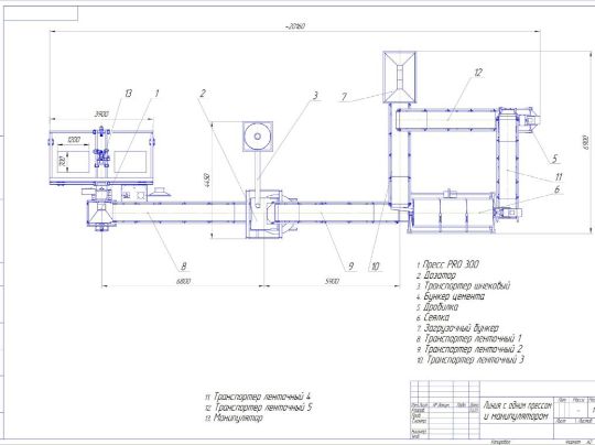
Примеры линии, стоимость и окупаемость

Наши цены

Цены указаны под ключ, учетом Пусконаладочных работ и обучения.

Линия 500 шт/ч Моноцвет
от 9 951 224
    В среднем период окупаемости 2 года
Получить КП
Линия 750 шт/ч Моноцвет
от 12 145 545
    В среднем период окупаемости 2 года
Получить КП
Линия без узла дробления и отсеивания
Линия 750 шт/ч Моноцвет
от 16 071 193
    В среднем период окупаемости 2 года
Получить КП
Линия без узла дробления и отсеивания
Линия 750 шт/ч Моноцвет
от 14 577 208
    В среднем период окупаемости 2 года
Получить КП
Линия 750 шт/час с системой COLOR MIX
Линия 750 шт/ч Моноцвет
от 18 650 499
    В среднем период окупаемости 2 года
Получить КП
Линия 750 шт/ч с системой COLOR MIX
Линия 750 шт/ч с системой COLOR MIX
от 22 341 994
    В среднем окупаемость линии 1,5 года.
Получить КП
Линия 1500 шт/чс системой COLOR MIX
от 34 488 907

    В среднем окупаемость линии 1 год

Получить КП
Линия 2250 шт/ч Моноцвет
от 42 551 293

    В среднем окупаемость 1,5 года

Получить КП
Линия 750 шт/час с системой COLOR MIX
Линия 3000шт/ч Моноцвет
от 55 589 717
    В среднем окупаемость 1,5 года
Получить КП


* Расчет окупаемости приведен примерно исходя и данных наших клиентов. Исходя из входящих данных, период окупаемости всегда считаем отдельно под каждый заказ.

** Производительность линии указана с учетом всех технологических остановок и т.д. Мы не меряем производительность временем цикла пресса, за основы берется рабочая смена со всеми остановками и регламентами на обслуживание. 

*** Стоимость линии уточняйте у менеджера. Не является публичной офертой.  

РАсчет РЕНТАБЕЛЬНОСТИ 

Для полного расчета себестоимости и рентабельности производства свяжитесь с нами любым удобным способом.  Проведем Вам полную консультацию, произведем расчет необходимого оборудования и поясним по параметрам помещения.


Оставить заявку на расчет

Наши клиенты

Нами поставлено и запущено!

Мы на рынке уже более 15 лет. За это время пы поставили оборудование более 150 клиентам. Один из показателей нашей работы, это то что в данный момент более 90% выпущенного оборудование за весь период нашей деятельности,  работает у наших клиентов.



150+
клиентов
Оставить запрос

Свяжитесь С нами

Обсудите все нюансы с нашей командой профессионалов! Мы ответим на любые ваши вопросы.

Контакты

Россия, г. Майкоп, ул. Юннатов дом 9, корп В
CRM-форма появится здесь